Haus-Grundrisse im Vergleich 15*14m

All-in-One-Geschoss von Modell Bungaleum

All-in-One-Geschoss von Modell Bungapult

All-in-One-Geschoss von Modell Janileum
Zwei-Etagen-Häuser (und potentielle Zweifamilienhäuser)

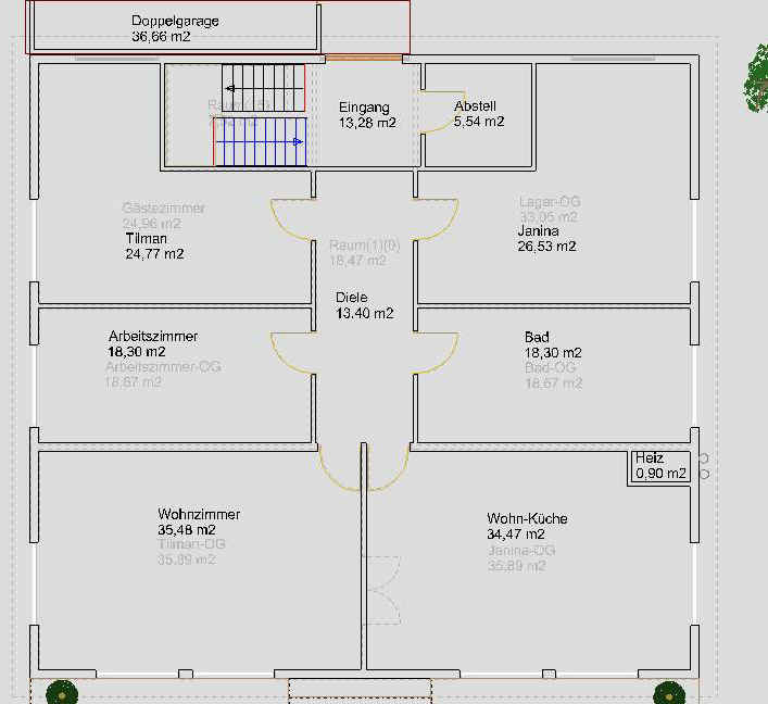
Erdgeschoss von Modell Casapult inkl.
Doppelgarage

Erdgeschoss von Modell Casapult-2
externe Doppelgarage oben links

Obergeschoss der Modelle Casapult
und Casapult-2
mit großem Stauraum in den
nördlichen Räumen

Erdgeschoss von Modell Janileum02

Obergeschoss von Modell Janileum02
Sollte das Obergeschoss in eine selbständige Wohnung umgewandelt werden,
müsste lediglich eine Küche nachgerüstet werden.
Die Elektroverteilung sollte vorsorglich zentriert ins OG erfolgen, um etagenweise Zähler vorhängen zu können.
Desgleichen Wasserleitungszentralisation ins OG mit Vorratsverschraubung für Wasserzähler.
weitere >> Bauskizzen